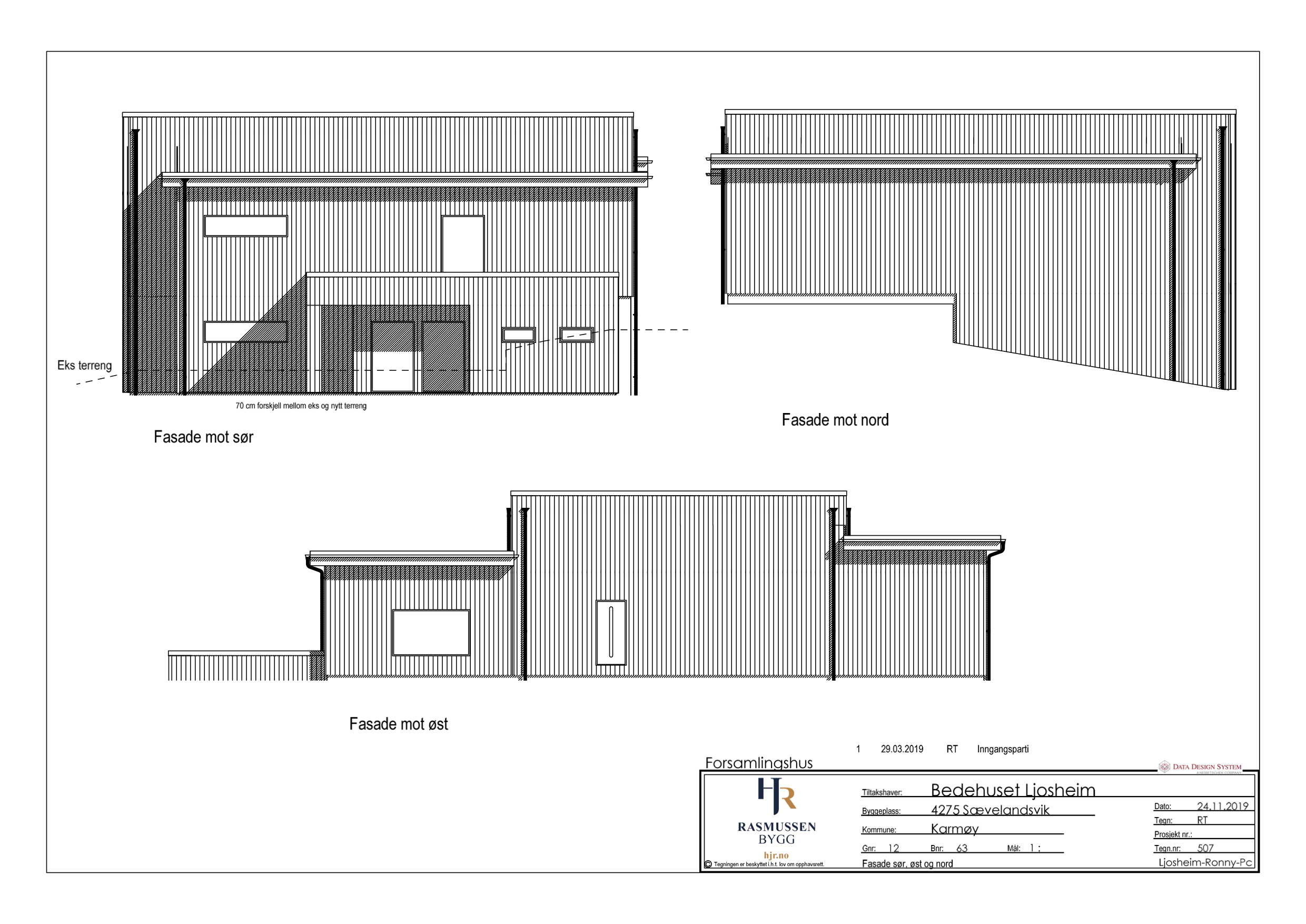
Tegninger